Tabela luzów
Część |
Pomiar |
Wymiary i tolerancja |
Luzy dla nowych części |
Max dop. luzy |
|
Łożysko stopy korbowodu |
Φ pionowo |
|
|
|
|
|
Φ poziomo
|
|
poziomo 0.208..0.289 |
|
|
Sworzeń tłokowy |
Φ |
|
0.115..0.170 |
0.20 |
|
Łożysko łba korbowodu |
Φ |
|
0.025..0.062 |
0.09 |
|
Łożysko łba korbowodu |
szerokość |
|
osiowo 0.5..0.9 |
1.2 |
|
Tłok żeliwny |
Otwór piasty sworznia |
|
|
|
|
Tłok żeliwny |
Φ 10 mm poniżej górnej krawędzi |
|
1.500..1.596 |
|
|
|
Φ 150 mm pon. górnej krawędzi |
|
0.183..0.279 |
max. 251.0 |
|
Tłok żeliwny |
wys. 1-3 rowka |
|
osiowo: 0.100..0.145 |
0.25 |
|
|
wys. rowka pierścienia zgarniającego |
|
0.033..0.068 |
0.2 |
|
Pierśc. uszczeln. do tłoka żeliwnego |
wysokość |
|
|
|
|
Pierścień zgarniający |
wysokość |
|
|
|
|
Tabela luzów cd.
Część |
Pomiar |
Wymiary i tolerancja |
Luzy dla nowych części |
Max dop. luzy |
||
Pierścień uszczeln. dla tłoka żeliwnego (1 i 2) |
luz w zamku |
- |
1.8 - 2.1 |
3.0 |
||
Pierścień uszczeln. trzeci dla tłoka żeliwnego |
luz w zamku |
- |
1.3-1.5 |
2.5 |
||
Pierścień zgarniający |
luz w zamku |
- |
0.6-0.8 |
2.0 |
||
Tłok żeliwny |
odl. między piastami sworznia |
|
|
|
||
Tuleja cylindrowa |
Φ wewn. |
|
|
|
||
Dokręcanie połączeń śrubowych
Element odkręcany |
Gwint |
Rozmiar Klucza |
Nr. narz. |
Wartości naciągów |
||||||||
|
|
|
|
II Moment dokręcania (kGm) |
III
Kąt (deg) |
IV Ciśnienie hydrauliczne (bar) |
||||||
Śruby głowicowe dwustronne |
M48 |
pręt Φ 10 |
22 |
- |
od 1 do 2 etapu 75o-85o |
1 etap 180 2 etap 675 luzowanie 685 |
||||||
Śruby korbowod. dwustronne |
M36 |
sworzeń 6 mm |
- |
- |
od 1 do 2 etapu 45o |
1 etap 185 2 etap 550 luzowanie 560 |
||||||
Legenda do schematu tulei cylindrowej (załącznik nr 1)
tuleja cylindrowa
szyna pomiarowa

średnicówka
Legenda do rysunku przedstawiającego głowicę cylindrową (załącznik nr 2)
głowica cylindrowa
tulejka wtryskiwacza
wtryskiwacz
kołnierz dociskowy
zawór rozruchowy
zawór bezpieczeństwa
śruba zamykająca
wspornik dźwigni zaworowych
dźwignia zaworowa
pokrywa głowicy

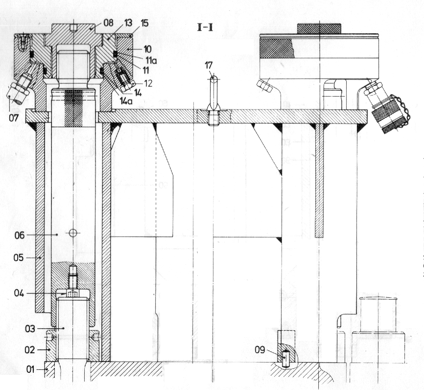
Legenda do rysunku przedstawiającego hydrauliczne urządzenie do napinania śrub mocujących głowicę cylindrową (załącznik nr 3)
01 głowica cylindrowa
nakrętka
śruba dwustronna mocująca głowicę
śruba
wspornik
śruba napinająca
złącze przewodu wężowego
nakrętka mocująca
kołek mocujący
kołek walcowy
uszczelka pierścieniowa
11a pierścień teflonowy
śruba odpowietrzająca
tłok
uszczelka pierścieniowa
14a pierścień teflonowy
pierścień oporowy
pierścień osadczy rozprężny
śruba z uchem
hydrauliczna pompa ręczna

Legenda do rysunku przedstawiającego korbowód (załącznik nr 4)
korbowód
pokrywa korbowodu
górne łożysko korbowodu
dolne łożysko korbowodu - dwudzielne
tulejka dystansowa
śruba dwustronna
nakrętka okrągła

08 kołek pasowany