Wymiarowanie stopy fundamentowej |
Parametry geotechniczne
W podłożu stwierdzono występowanie warstwy piasku średniego wilgotnego Pd o stopniu zagęszczenia ID = 0,20 zalegającej do głębokości 20,0 m. poniżej powierzchni terenu.
Parametry geotechniczne zostały wyznaczone na podstawie nomogramów i tablic według metody B.
Nazwa gruntu |
Piaski drobne mało wilgotne |
ID(n) |
0,20 |
ρ(n) [g/cm3] |
1,60 |
γ(n) [kN/m3] |
16,0 |
φu(n) [o] |
29 |
cu(n) [kPa] |
- |
Obciążenie
Rodzaj obciążenia obliczeniowego |
Schemat I Mmax (Ntow, Ttow) |
Schemat II Nmax (Mtow, Ttow) |
Pr [kN] |
-453,686 |
-497,387 |
Mr [kNm] |
130,457 |
82,793 |
Tr [kN] |
19,600 |
3,260 |
Obciążenie posadzką
Warstwy posadzki |
Obciążenie charakterystyczne [kN/m2] |
Współczynnik obciążenia γf |
Obciążenie obliczeniowe [kN/m2] |
0,05×20,0
0,15×11,0
0,03×21,0
0,05×20,0
0,10×16,5 |
1,00
1,65
0,63 0,0165
1,00
1,65 |
1,3
1,3
1,3 1,2
1,3
1,2 |
1,30
2,14
0,82 0,02
1,30
1,98 |
Razem |
5,95 |
|
7,56 |
Przyjęte wymiary
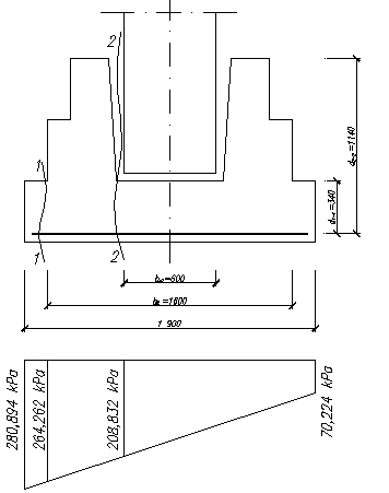
Hala przemysłowa zlokalizowana jest w Opolu, gdzie głębokość przemarzania hz=1,0m. Stopa fundamentowa posadowiona jest na głębokości 1,35m. Szerokość stopy B=1,90m., długość L=1,70m., natomiast wysokość (stopa schodkowa) h=1,20m.

Schemat obliczeniowy
Obliczenie ciężarów stopy, gruntu na odsadzkach i posadzki
ciężar stopy

ciężar posadzki
![]()
ciężar gruntu na odsadzkach
![]()
![]()
Sprawdzenie, czy wypadkowa od obciążeń stałych i zmiennych znajduje się w rdzeniu
Schemat I
Obciążenie pionowe podłoża
![]()
Moment wypadkowej obciążeń podłoża (względem środka podstawy stopy)
![]()
Mimośród wypadkowej obciążeń (obliczony względem środka podstawy stopy)

Wypadkowa obciążeń znajduje się w rdzeniu podstawy.
Schemat II
Obciążenie pionowe podłoża
![]()
Moment wypadkowej obciążeń podłoża (względem środka podstawy stopy)
![]()
Mimośród wypadkowej obciążeń (obliczony względem środka podstawy stopy)

Wypadkowa obciążeń znajduje się w rdzeniu podstawy.
Sprawdzenie nośności podłoża
Warunek obliczeniowy:
![]()
m = 0,81 - współczynnik korekcyjny jest zmniejszony o 10% ze względu na wyznaczenie parametrów wytrzymałościowych gruntów metodą B.
Schemat I
Wpływ mimośrodu obciążenia
![]()
![]()
ponieważ ![]()

Obciążenie podłoża obok ławy fundamentowej
posadzka
![]()
piasek średni wilgotny
![]()
![]()
![]()
![]()
![]()
Współczynniki nośności podłoża
![]()
Z normy PN-81/B-03020 (tablica Z1-1) odczytano współczynniki
![]()
![]()
Wpływ odchylenia wypadkowej obciążenia podłoża od pionu

![]()
![]()
Z normy PN-81/B-03020 (rys. Z1-2) odczytano współczynniki
![]()
![]()
Ciężar objętościowy gruntu pod ławą fundamentową (do głębokości z = B = 1,90m.)
![]()
Opór graniczny podłoża![]()

Sprawdzenie warunku obliczeniowego
![]()
Warunek nośności spełniony.
Schemat II
Wpływ mimośrodu obciążenia
![]()
![]()
ponieważ ![]()

Obciążenie podłoża obok ławy fundamentowej
posadzka
![]()
piasek średni wilgotny
![]()
![]()
![]()
![]()
![]()
Współczynniki nośności podłoża
![]()
Z normy PN-81/B-03020 (tablica Z1-1) odczytano współczynniki
![]()
![]()
Wpływ odchylenia wypadkowej obciążenia podłoża od pionu

![]()
![]()
Z normy PN-81/B-03020 (rys. Z1-2) odczytano współczynniki
![]()
![]()
Ciężar objętościowy gruntu pod ławą fundamentową (do głębokości z = B = 1,90m.)
![]()
Opór graniczny podłoża![]()

Sprawdzenie warunku obliczeniowego
![]()
Warunek nośności spełniony.
Wymiarowanie stopy fundamentowej
Dane
Beton B-20
![]()
- wytrzymałość obliczeniowa konstrukcji żelbetowych na ściskanie
![]()
- współczynnik redukcyjny wytrzymałości betonu na ściskanie
Stal A-II (18G2-b)
![]()
- obliczeniowa granica plastyczności stali
Naprężenie gruntu pod stopą fundamentową (wypadkowa w rdzeniu) - schemat II

gdzie:
![]()
- obciążenie pionowe podłoża
![]()
czyli:


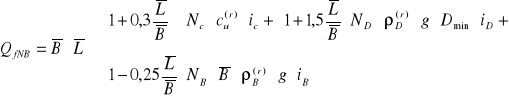
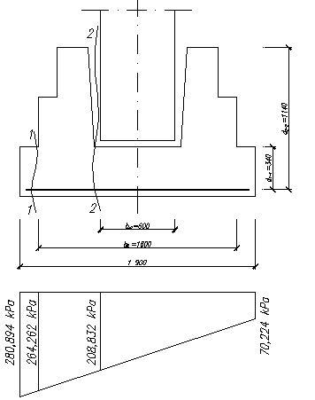
Wymiarowanie stopy na zginanie (schemat II)
Schemat obliczeniowy

Wymiarowanie stopy
Wymiarujemy stopę metodą wydzielonych wsporników według wzoru:

gdzie:
![]()
- moment zginający stopę wydzielonych przekrojach
przekrój 1-1
![]()
przekrój 2-2
![]()
czyli:


przyjmuję zbrojenie minimalne (ze względu na przebicie ![]()
)
![]()
Wymiarowanie zbrojenia kielicha (zbrojenie pionowe) (schemat I)
Schemat obliczeniowy
Wymiarowanie zbrojenie pionowego
mimośród działania siły wypadkowej
![]()
Wymiarowanie stopy na przebicie (stopa obciążona mimośrodowo)
Ze względu na to że przebicie nie wystąpi w przekroju 1-1 od obciążeń całkowitych, wykonujemy sprawdzenie w przekroju 2-2 na obciążenia montażowe tj. ciężar słupa.
Schemat obliczeniowy

Wymiarowanie na przebicie
![]()
gdzie:
![]()
- ciężar słupa
![]()
- średnia arytmetyczna szerokości b1 i b2
![]()
- wytrzymałość obliczeniowa dla konstrukcji żelbetowych na rozciąganie
czyli:
![]()
![]()
![]()
![]()
(warunek spełniony)
Projekt prefabrykowanej hali przemysłowej |
wg systemu P-70 |


